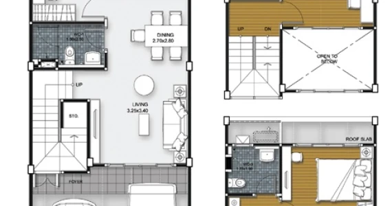
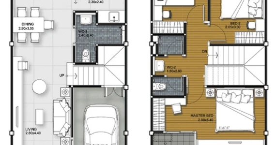
ดิ โอโซน เพชรเกษม 53 (The Ozone Petchkasem 53)
ดิ โอโซน เพชรเกษม 53 (The Ozone Petchkasem 53)
ดูบ้านราคาใกล้เคียง
ดูที เอ เอส พร็อพเพอร์ตี้ ทุกโครงการ
โครงการนี้มีอายุมากกว่า 5 ปี โปรดสอบถามข้อมูลกับทางโครงการอีกครั้ง

